Lonsdale 12-16 Dorset Street

Enquire Now
< >

For Lease
contact agent

High-Clearance Warehouse & Office - Premium Industrial Opportunity in Vibrant Lonsdale

Rental Details

Open Times

Share This Property


Century 21 Southern Commercial is pleased to offer for lease this high-quality warehouse and office facility, ideally positioned within the thriving industrial precinct of Lonsdale.
Strategically located with seamless access to the Southern Expressway, the property provides efficient connectivity both north and south, making it ideal for logistics, warehousing, and growing businesses.
Currently occupied by Maxilift Australia, who are relocating to newly constructed premises, this presents a rare opportunity to secure a substantial and well-appointed industrial facility in one of Adelaide's most sought-after industrial hub of Lonsdale.
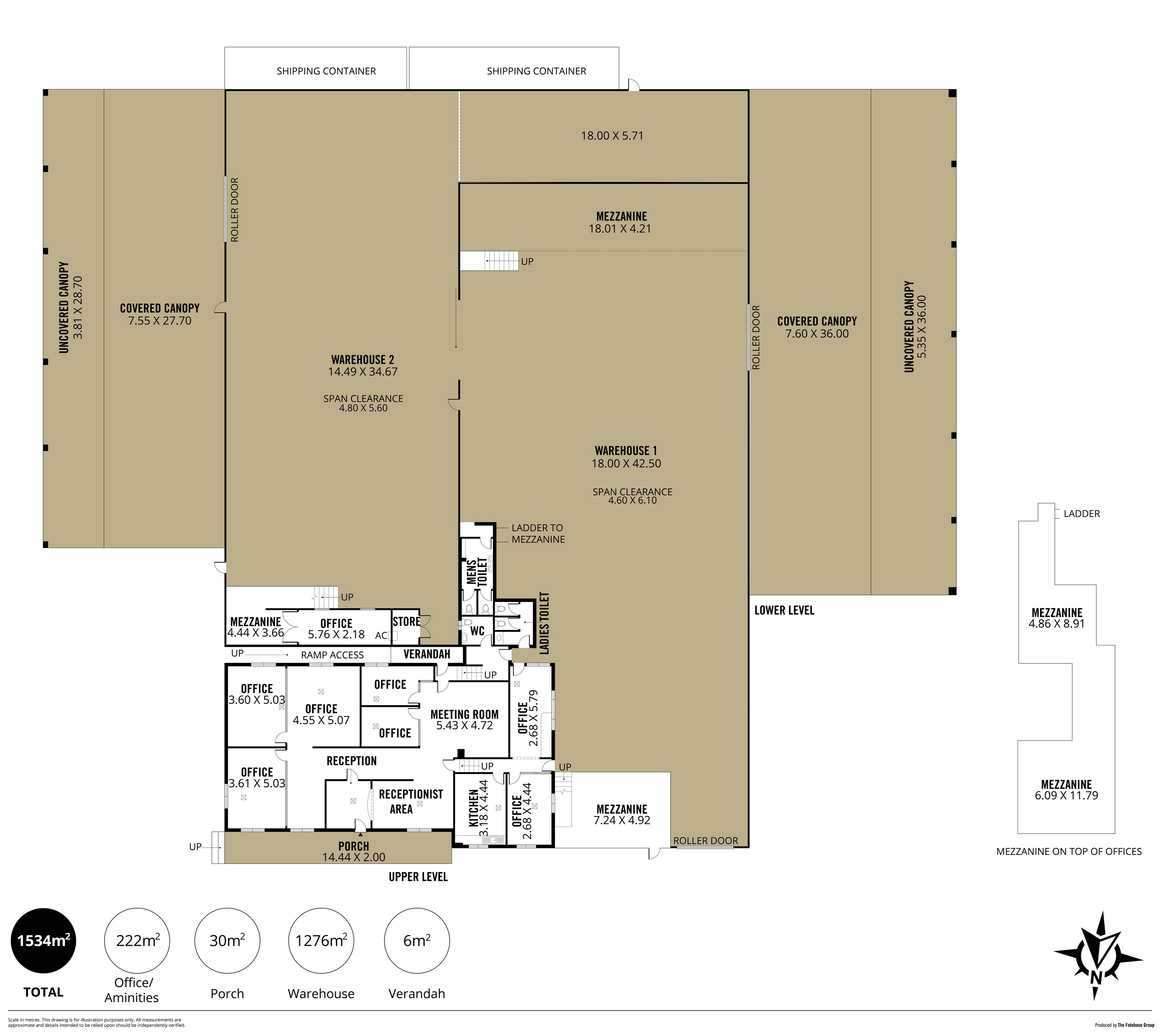
Positioned on a generous fully fenced 4,021.5sqm* site, the property features approximately 2,487.95sqm* of high-clearance warehouse and quality office accommodation.
Key Features
2,487.95sqm high-clearance warehouse* with the flexibility to divide into two separate tenancies to suit operational requirementsEnergy-efficient LED high-hanging lighting complemented by large skylightsOver 250sqm of quality office accommodation*, to be all freshly painted with new floor coveringsQuality bathroom and kitchen amenitiesSecure roller shutters with remote access to the upper office areaSpanning mezzanine levels providing additional storage capacityMultiple roller door access points for efficient loading and deliveriesRecently installed canopies to the eastern and western elevations, creating valuable undercover space for deliveries contributing more than 790sqm to the GLA. Two additional external shipping containers for supplementary storageEight (8) designated on-site car parks on front boundary, plus additional carparks can be allocated on the eastern and western boundary if needed. Fully fenced site with professionally maintained landscapingImmediate access to major arterial road networksAvailable for occupancy from early May 2026.
12 - 16 Dorset Street represents a compelling opportunity to secure premium industrial accommodation within Lonsdale's established and strategically positioned industrial precinct.
For further information or to arrange a private inspection, please contact the exclusively appointed leasing agents.

RLA 314904

Property Information

  • Land area approx 4021sqm
  • Floor area approx 2487sqm
Century 21 Southern Southern
170 Main South Road
Morphett Vale SA 5162


Local Information Lonsdale

Education

Nearest Government Schools

  • Lonsdale Heights Primary School
  • Morphett Vale Primary School
  • Flaxmill School P-6
  • Christie Downs Primary School
  • Reynella South Primary School
  • Pimpala Primary School

Nearest Private Schools

  • Antonio Catholic School
  • Calvary Lutheran Primary School
  • Southern Montessori School
  • FAME - Flexible Accredited Meaningful Engagement
  • St John the Apostle Catholic School
  • Southern Vales Christian College - Morphett Vale Campus

Local Amenities

Services

  • Christie Downs Fire Station
  • Morphett Vale Post Office
  • Christies Beach Police Station
  • Reynella Post Office

Viticulture

  • Hardys Winery
  • St Francis Winery
  • Hardys Reynella Winery

Sport and Recreation

  • Bice Oval
  • Noarlunga Downs Oval

Parks

  • Asor Park Reserve
  • Christies Beach Caravan Park
  • Cottage Lane Reserve
  • Hallett Cove Conservation Park

Community Facility

  • Hallett Cove Community Centre